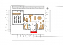
Bad Rothenfelde I

Einfamilienhaus mit Doppelgarage


181 m² Wohnfläche

EG 104 m², OG 77 m²

Besonderheiten:

  • Lüftungsanlage
  • wärmepumpe

Gallerie